Ga naar de hoofdinhoud Skip to search Skip to main navigation

De voordeur is afsluitbaar. De binnendeur is van gehard, brons getint glas.

Afwerking Geschaafd
Behandeling Onbehandeld
Dakbedekking inbegrepen Optioneel
Daktype Zadeldak
Deurtype Dubbele deur
Dikte glas 4-6-4mm
Droging Gedroogd
Glas Gehard isolatieglas
Hoofdmateriaal (gedetailleerd) Vuren
Inbegrepen Fundering, Houten vloer
Materiaal Hout
Niet inbegrepen Saunakachel
Roedes Losse roedes
Staanders 9,0 x 9,0 cm
Pakketafmetingen
Gewicht 2200 kg
Secundaire afmetingen
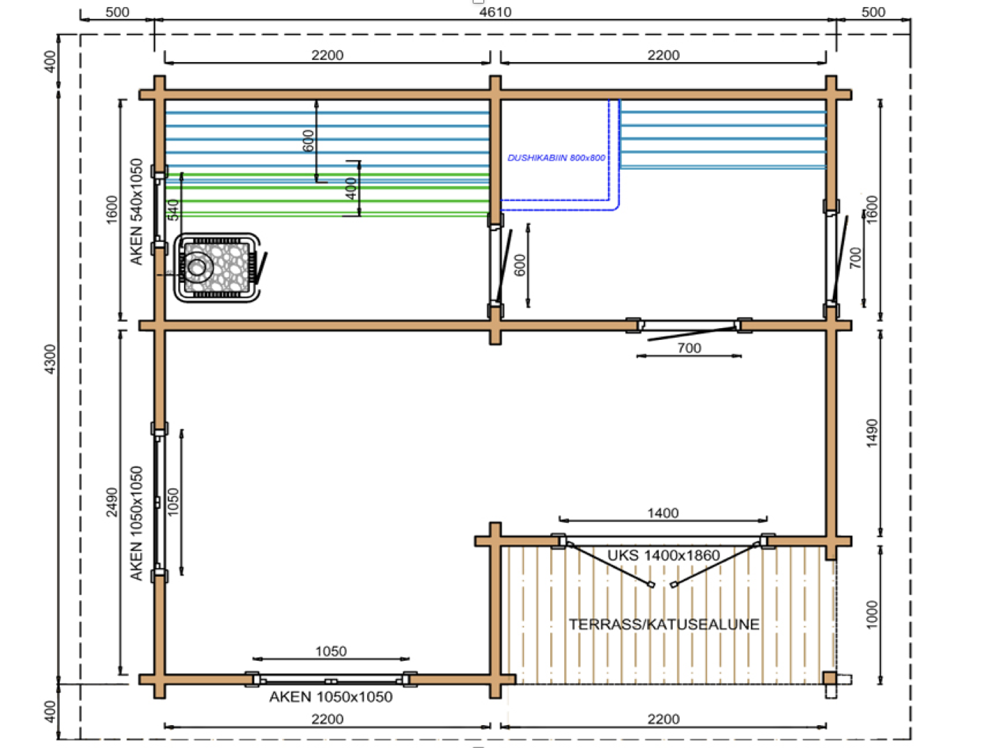
Fundering 456 x 425 cm
Nokhoogte 367 cm
Hellingshoek dak 23 degree
Dikte wand 70 mm
Primaire afmetingen
Lengte 461 cm
Breedte 430 cm
Product eigenschappen familie
Aantal deuren 2
Aantal ramen (te openen) 3
Aantal ruimtes 3
Geschikt voor dakpannen Nee

Sauna huis Tanhua | 70 mm | onbehandeld

Artikelnummer: P015080

€ 12.729,00

Consumentenadviesprijs