| Afdeklijsten | 1,6 x 14,0 cm |
|---|---|
| Afwerking | Geschaafd |
| Behandeling | Onbehandeld |
| Behandeling overkapping | Onbehandeld |
| Dakbedekking inbegrepen | Optioneel |
| Dakbeschot | 1,8 x 14,5 cm |
| Daktype | Zadeldak |
| Droging | Gedroogd |
| Glas | Enkel glas |
| Hoofdmateriaal (gedetailleerd) | Douglas |
| Inbegrepen | Bevestigingsmaterialen, Bouwtekening |
| Materiaal | Hout |
| Opbouw variant | Kan gespiegeld opgebouwd worden |
| Sporen | 4,5 x 14,5 cm |
| Staanders | 14,0 x 14,0 cm |
| Wandplanken | Zweeds rabat |
| Breedte | 1150 cm |
|---|---|
| Lengte | 4000 cm |
| Hoogte | 1650 cm |
| Gewicht | 1285 kg |
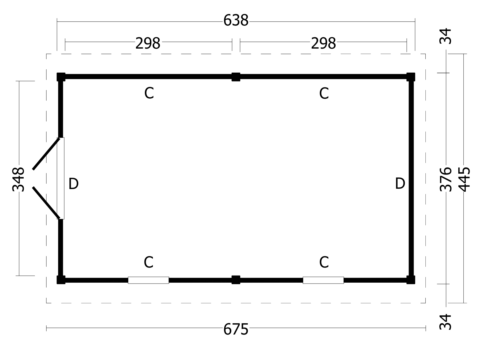
| Fundering | 638 x 376 cm |
|---|---|
| Nokhoogte | 350 cm |
| Doorloophoogte | 224 cm |
| Dakoppervlakte | 31 m² |
| Lengte | 675 cm |
|---|---|
| Breedte | 445 cm |
| Aantal deuren | 1 |
|---|---|
| A-kwaliteit | Ja |
| Geschikt voor dakpannen | Nee |
| Kernvrij | Ja |
| Modulair | Ja |
| Aantal ramen (te openen) | 2 |
| Aantal staanders | 6 |
| Doe-het-zelf (zelf op maat zagen) | Ja |
Referentie
Selecteer een bestaande bestellijst
Of maak een nieuwe lijst